您好,欢迎来到亿唐装饰,装饰装潢就上亿唐装饰,全程贴心服务!
当前位置 : 主页 > 精选案例 >
资深设计师团队免费户型解析,安心装好家
147㎡简约大气之家,太有质感!
  • 房屋面积:147
  • 装修风格:现代简约
  • 案例户型:住宅
  • 楼盘地址:徐汇区
案例设计师

倪莹

从业经验:20年
已有845人预约TA
查看TA的主页

案例信息
楼盘名称
147㎡简约大气之家,太有质感!
案例户型
住宅
案例面积
147
装修风格
现代简约
设计师
倪莹
楼盘地址
徐汇区

屋主是一对年约60岁左右的夫妇,重视实用性,期望多用石材,打造大器的家居。 

将奢华感的材质嵌入日常中,在各种材料变化对比之下感受不同材质中所堆叠出的层次感而不失机能,远看质朴、近看细腻,实验混搭出早期本土经典与现代精致风格。


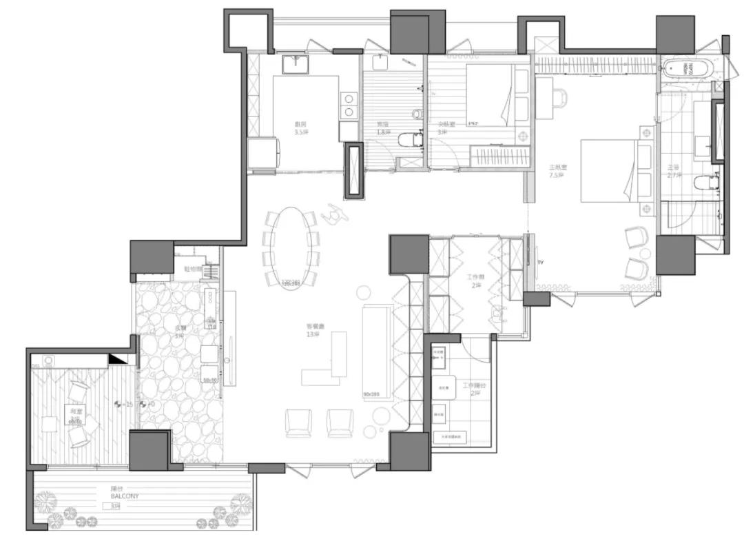
户型图

28.jpg

客厅
主卧
卫生间
算算我家装修需要多少钱
专业设计师1对1免费家装指导
0
 免费电话指导 400 820 1926
精选案例推荐查看更多
77㎡美式复古

77㎡美式复古
美式

查看更多
112㎡现代简约风格,装修恰到好处

112㎡现代简约风格,装修恰到好处
现代简约

查看更多
145㎡新中式大平层经久耐看,真心不容易过时

145㎡新中式大平层经久耐看,真心不容易过时
新中式

查看更多
简约而有内涵,成稳但不沉重

简约而有内涵,成稳但不沉重
现代简约

查看更多

亿唐装饰