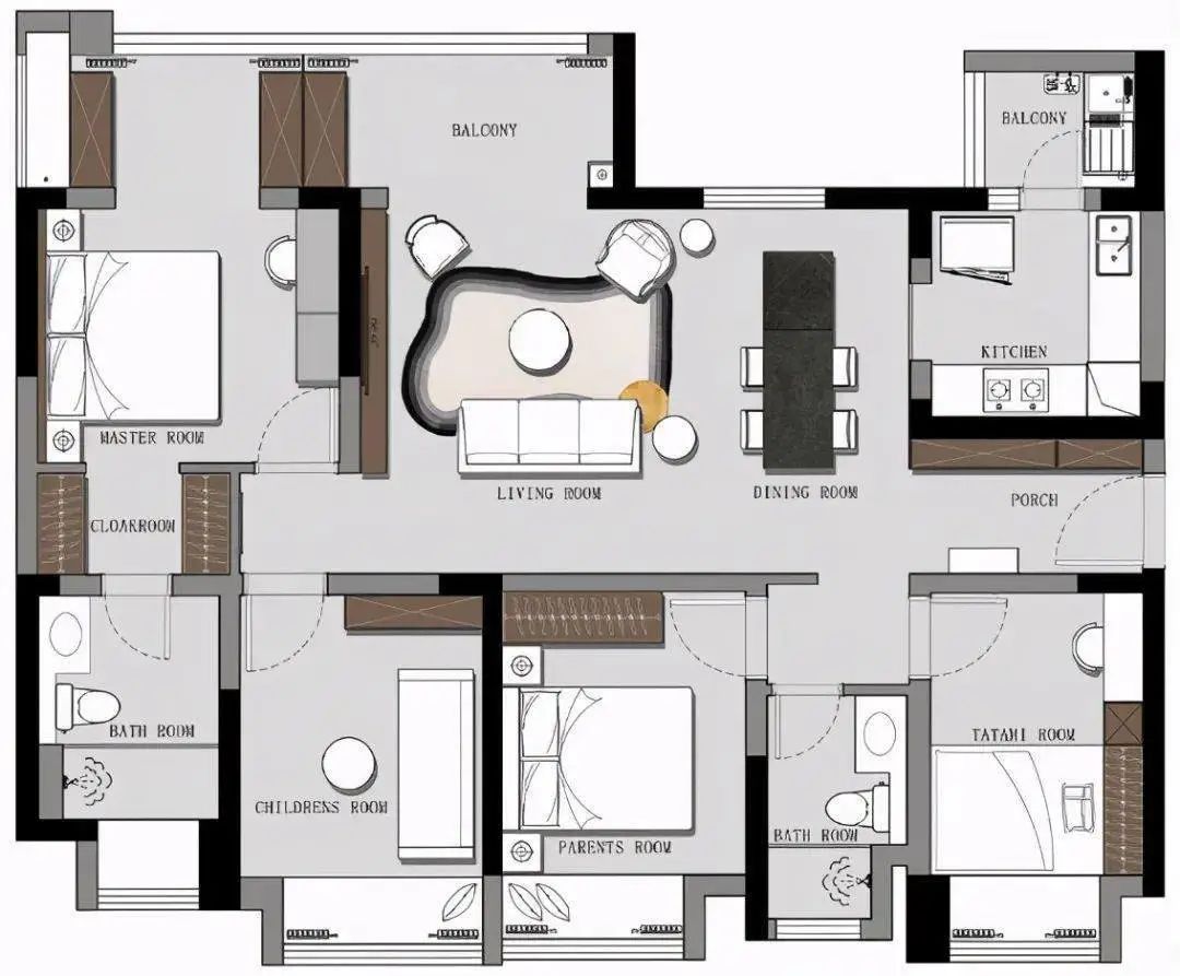
客厅设计
客厅给人的第一感觉,就是简约大方。大面积使用白色,一定程度上提亮了空间,加上深色家具,和黑白相间的地毯,又不缺乏时尚气质。在照明设计上,以明装轨道射灯取代主灯,
弱化了单一主灯对空间顶部的视觉干扰,让重心集中在地面空间。
通过可移动的家具,让客厅随着生活的变化而改变。需要看电视的时候,就横着摆放沙发;不需要看电视的时候,又可以侧着摆放沙发,头枕着沙发扶手,以慵懒的姿态眺望窗外的美
景。摆脱了常见的固定式布局,不同的视角和使用感受,更适合年轻人的生活方式。
电视墙以纯净白色打造,简单的造型设计,带出些许层次感。电视暂时还未安装,后期根据需求决定是否安装。与电视墙齐平推展出一道地柜,充当电视柜的角色,用于客厅收纳。颜
色与家具保持同步,让客厅更显整洁统一。
餐厅设计
餐厅与客厅一体设计,保持空间开阔,空间利用率也得以提升。没有明显隔断,通过灯具和家具进行分区。考虑到常住人口不多,放弃了大长桌的选择,以餐桌结合岛台的设计,一方
面增加了餐厅收纳,另一方面也让岛台与餐桌有一个递减层次感。
整个餐厅墙面为3米,背靠着厨房,为了整体效果更整洁统一,采用了隐形门设计。
主卧设计
主卧格局还是比较合理通透的,左侧为衣帽间,右侧为阳台空间,中间部分则是床铺的位置,通过定制设计解决床和床头柜,让空间百分百得到利用。阳台封窗处理,与主卧之间不设
隔断,让活动空间更宽敞。阳台打造储物柜,提升收纳能力,以保证空间整洁。
床尾在不影响过道走动的前提下,定制了一个宽50公分的悬挂梳妆台,同步嵌入设计了壁龛收纳,整体设计简洁不显拥挤。
次卧设计
次卧空间有限,没有过度追求造型装饰,以实用性为主。没有特别界定年龄和性别,选择了和整体设计统一的风格。
书房设计
书房从功能性延展出发,采用定制设计,做了榻榻米、衣柜和书桌一体设计,满足了客房、办公、休闲等需求。由于空间不大,屋主又不希望过冷设计,因此采用上下分色,以浆果色
搭配灰粉色。
整体细节也很到位,预先调制好色彩,通过定制同色系哑光门板,将色彩误差降低到最低,让效果更加整洁统一。
