您好,欢迎来到亿唐装饰,装饰装潢就上亿唐装饰,全程贴心服务!
当前位置 : 主页 > 精选案例 >
资深设计师团队免费户型解析,安心装好家
中大九里德
  • 房屋面积:150㎡
  • 装修风格:中式
  • 案例户型:复式
  • 楼盘地址:松江区
案例设计师
案例信息
楼盘名称
中大九里德
案例户型
复式
案例面积
150㎡
装修风格
中式
设计师
邹志发
楼盘地址
松江区
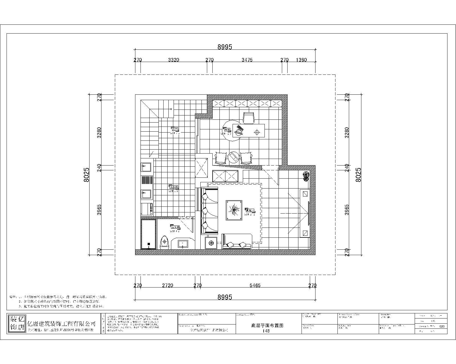
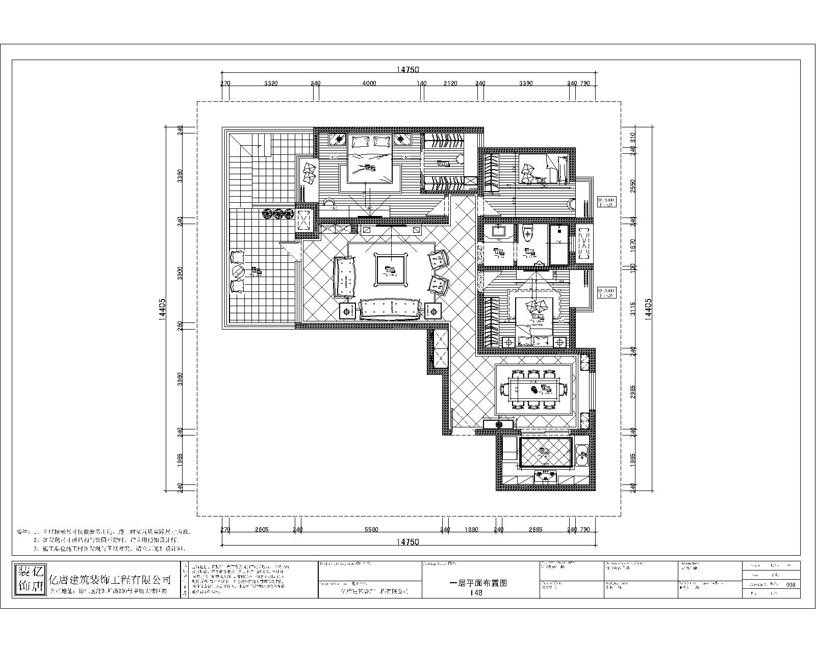
楼盘地址:松江区-上海市松江区九杜路1000弄楼盘户型:复式楼盘风格:中式风格实际面积:150㎡楼盘介绍:中大九里德位于位于涞坊路650弄,北靠莱坊路、西临九新公路、东面与九亭中学一墙之隔,位于松江北九亭板块, A9高速、沪松公路、地铁九号快速直达徐家汇、虹桥两大城市中心,距离9号线九亭站约1500米。周边配套齐全,社区旁规划有大卖场,近邻英国学校、美国学校、新加坡学校、韩国学校和九亭中学,周边均为高品质低密度国际化住宅区,本项目实为稀缺的泛虹桥城市别墅典范。
户型图
中式风格装修户型示意图
中式风格装修户型示意图
客厅
中式风格装修客厅示意图
中式风格装修客厅示意图
主卧
中式风格装修主卧示意图
卫生间
算算我家装修需要多少钱
专业设计师1对1免费家装指导
0
 免费电话指导 400 820 1926
精选案例推荐查看更多
77㎡美式复古

77㎡美式复古
美式

查看更多
112㎡现代简约风格,装修恰到好处

112㎡现代简约风格,装修恰到好处
现代简约

查看更多
145㎡新中式大平层经久耐看,真心不容易过时

145㎡新中式大平层经久耐看,真心不容易过时
新中式

查看更多
简约而有内涵,成稳但不沉重

简约而有内涵,成稳但不沉重
现代简约

查看更多

亿唐装饰