全国统一24小时服务热线:
400-820-1926
在线沟通:
智能系统
在建工地
设计精英
工装事业部
网站首页
Home
关于我们
About
环保工程
Environmental
风格设计
Style
智能生活
Intelligent
客户服务
Service
联系我们
Contact
亿唐简介
亿唐荣誉
新闻动态
企业文化
金砖工程
在建工地
找我家方案
精品案例
设计精英
设计理念
出图标准
智能系统
功能空间
360全景展示
服务流程
在线预约
售后服务
投诉建议
徐汇区
杨浦区
青浦分店
普陀大华
上海
上海
浦东新区
嘉定
浦东周浦
金山
崇明区
奉贤区
精品案例
设计精英
设计理念
出图标准
首页
>
风格设计
>
设计精英
别墅装修
公寓装修
复式装修
品牌建材
区域:
不限
浦东新区
静安区
徐汇区
闵行区
闸北区
宝山区
奉贤区
杨浦区
虹口区
黄浦区
松江区
嘉定区
金山区
长宁区
普陀区
卢湾区
青浦区
南汇区
其他
房型:
不限
两房
三房
复式
别墅
其他
风格:
不限
简约风格
简欧风格
欧式风格
新古典风格
地中海风格
东南亚风格
田园风格
中式风格
混搭风格
其他
世茂爱马尚郡
楼盘地址:奉贤区-上海市奉贤区明城路588弄
楼盘户型:三房
楼盘风格:简约风格
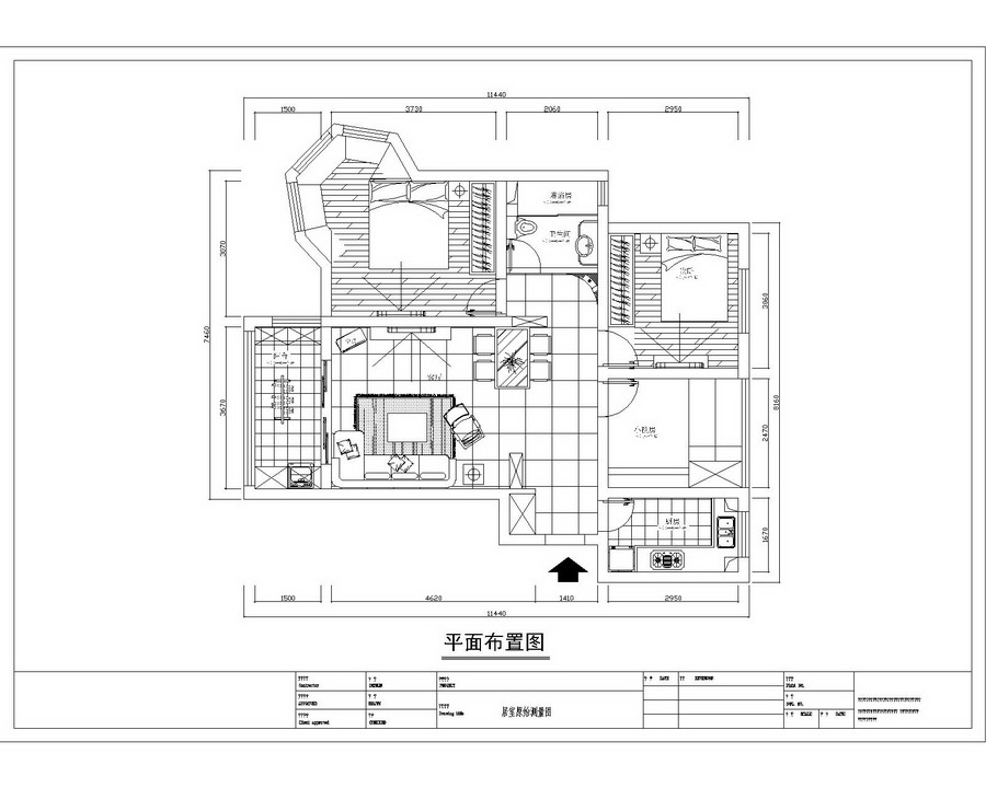
实际面积:110㎡
楼盘介绍:
世茂爱马尚郡位于奉贤区民乐路、中心路口,临近海湾旅游度假区,拥有“世界第九湾”美誉的奉贤海湾北部,近未来的海湾镇中心。地块附近为已建成的18洞高尔夫球场、碧海金沙浴场、渔人码头、马术俱乐部、国际风筝放飞场等旅游配套。
预约设计师
已施工:5户
世茂爱马尚郡
世茂爱马尚郡
世茂爱马尚郡
设计风格:简约风格
建筑类型:三房
实际面积:120㎡
格调生活
设计风格:简约风格
建筑类型:两房
实际面积:90㎡
金地天境
设计风格:简约风格
建筑类型:三房
实际面积:120㎡
金地天境
设计师:崔丽
职称:首席设计师
从业:5年
设计思路说明:
本案以现代经典的黑、白、米黄三个色调营造了一个清新、典雅的居住氛围,简约而不简单,平淡而不平凡。每个空间没有多余的线条,让生活变得简单而富有趣味,相当惬意、舒适。