60㎡北欧小户型,老破小变身浪漫婚房,开启浪漫精致的生活 2020/8/28
这是一套仅有60平米的老破小,之所以翻新改造,是为了作为婚房使用,上海家装设计设计师准备把旧房改造出温馨优雅的模样,让生活更加温馨浪漫。在改造中整体以北欧风格为基础,细节里加入了大量精致浪漫的元素,装扮出一个主人期望的生活氛围感。
图·赏picture



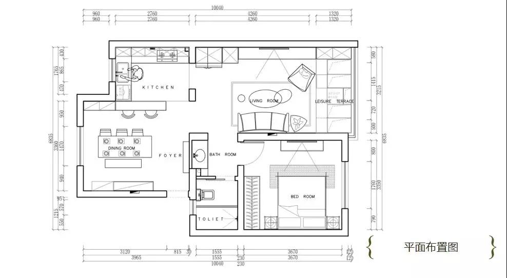
户型图+平面方案




玄关


回家后的首眼,看到的开放式的餐厨空间,整体简约文艺的空间,显得闲适自然。


客厅


简约自然的客厅,电视墙是一个简约自然格调的电视柜,侧边还有一个高柜,在淡绿色的墙面基础,在黑白配的几何图案地毯上摆着两张粉白配的小茶几,布置出一个雅致端庄的氛围感。




浪漫的成双小摆饰,也是使得空间充满浪漫跳跃的气质。



洁白的沙发墙上挂一幅黑白人像画,旁边还有两盏月形的背光壁灯,布置出一个温情舒适的画面感。



浅灰色的布艺沙发,布置出一个简约年轻的舒适感,靠窗还定制了榻榻米,充当了临时的睡眠区域,也可以作为客厅的坐席位置。


餐厅


餐厅的文艺餐桌搭配了两张青色温莎椅,餐桌上也是垫着格纹小桌布,整体用餐氛围显得文艺舒适。




餐桌上精致的餐具与花瓶布置,也让用餐氛围更加精致有仪式感。


厨房


▲开放式的厨房与餐厅隔着一道小吧台,暖灰色六边砖地面+黑色小格纹砖墙面,天花整体木色吊平,装入筒灯,显得简洁大方好自然


卧室


卧室床头墙在浅紫色乳胶漆基础,挂上一副意境的森林装饰画,搭配黑色的床铺与衣柜,呈现出一个成熟端庄的氛围感。

灰色竖纹的木地板,浅棕色的窗帘布置,整体卧室显得稳重而闲适档次。

▲床头柜上的花瓶、装饰画与一张吊灯,在细节处也布置出温馨自然的档次感


卫浴


▲洗手盆装在走廊区域,墙脚区域装着海蓝色的墙砖,壁挂洗手盆刚好嵌入中间位置,紧凑的空间也利用得舒适大气

卫浴区的墙面砖在暖灰色面包砖基础,安装花洒的这面墙则是以独特的报纸图案纹理的设计,淋浴区外铺上舒心的地毯,超大化地保障居家空间的干湿分离与安全。

返回上一页